Fließende Wellentäler
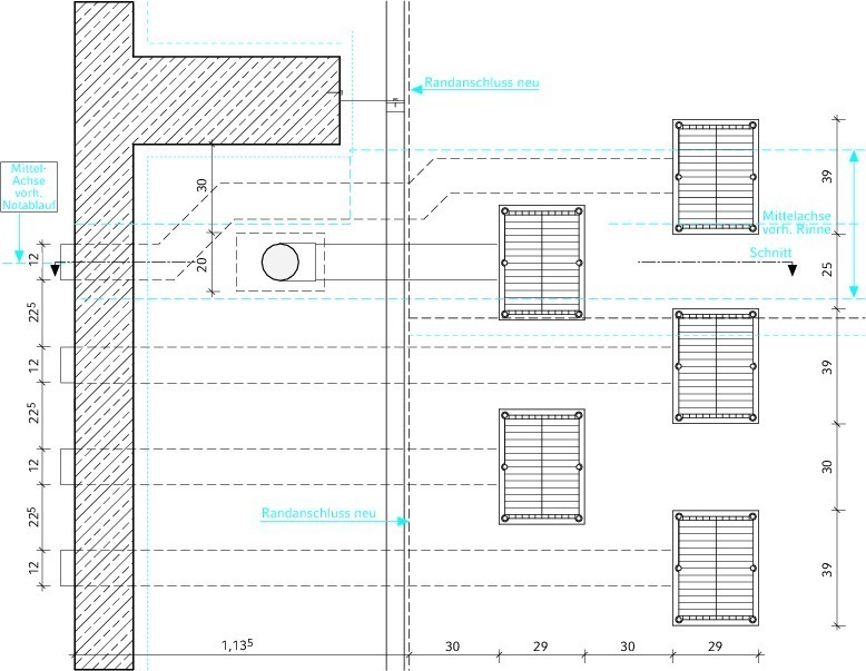
Sanierung der Flachdachentwässerung im Kölner AgrippabadDas geschwungene Dach des Agrippabades in Köln spiegelt symbolisch das Wellenspiel des Wassers wider. Substanzschädigende Undichtigkeiten der architektonisch anspruchsvollen Dachlandschaft erforderten eine umfangreiche Sanierung der Dachentwässerung, die aufgrund einer sorgfältigen Planung, gewissenhaften Umsetzung und unter Berücksichtigung der Denkmalschutzauflagen gelang.
Jetzt Artikel freischalten:
tab DIGITAL
14 Tage kostenlos testen
2,49 € / Woche*
Fachwissen jederzeit und überall.
Greifen Sie auf exklusive PLUS-Artikel und das komplette Online-Archiv zu und lesen Sie tab bequem im E-Paper-Format. Das digitale Abo für alle, die flexibel bleiben möchten.
Ihre Vorteile:
- Exklusive tab-PLUS-Artikel
- 6 E-Paper für mobiles Lesen
- Online-Archivzugang
*129,48 € bei jährlicher Abrechnung inkl. MwSt.
tab KOMBI
4,99 € / Woche*
Das komplette tab-Erlebnis – digital & gedruckt.
Für alle, die Fachinformationen auf allen Kanälen nutzen möchten: Kombinieren Sie Print und Digital, profitieren Sie von unseren Fachforen und präsentieren Sie Ihr eigenes Projekt.
Ihre Vorteile:
- Exklusive tab-PLUS-Artikel
- 6 Print-Ausgaben pro Jahr
- E-Paper für mobiles lesen
- Teilnahme an einem Fachforum
- Online-Archivzugang
- Veröffentlichen eines Projekts
*259,48 € bei jährlicher Zahlung inkl. MwSt. & Versand
