Ventile für den geregelten Durchfluss
Energetische Umgestaltung im UnternehmenSeit dem Start im Jahre 1953 hat sich Dula zu einem bedeutenden Unternehmen im Bereich der ganzheitlichen Ladengestaltung und des exklusiven Innenausbaus entwickelt. Bei der energetischen Um- und Neugestaltung des Unternehmens kommen an den Standorten der eigenen Werke elektronisch geregelte Ventile zum Einsatz, die wesentlich zur Verbesserung der Energieeffizienz beitragen.
Bestandsaufnahme
Dula nimmt am GreenBuilding-Programm teil, das von der Generaldirektion Energie und Verkehr der Europäischen Kommission gefördert wird. Ziel ist die Erhöhung der Energieeffizienz und die verstärkte Nutzung erneuerbarer Energien. Durch einen Fachplaner wurde eine energetische Bestandsaufnahme aller Dula-Gebäude durchgeführt und ein entsprechender Maßnahmenkatalog festgelegt. Die Erneuerung der Heizungsanlage im Dula-Werk in Vreden gehörte mit zu den ersten Maßnahmen, die umgesetzt wurden. Eine Sanierung der Gebäudeaußenhülle inklusive Dach, der Einbau einer Solaranlage etc. sind weitere Schritte.
Die neue Heizungsanlage
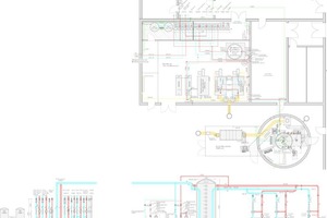
Das Projekt Heizungsanlage beinhaltete den Ersatz der beiden alten Ölkessel mit 2 MW durch zwei neue Gaskessel mit je 1 MW, den zusätzlichen Einbau einer BHKW-Anlage mit 90 kW, die Erneuerung des vorhandenen Holzspänekessels und den Einbau eines Pufferspeichers sowie den Aufbau einer neuen Haupt- und Unterverteilung. Parallel hierzu wurden und werden derzeit auf dem Firmengelände in Vreden neue Fertigungshallen errichtet und Büros erweitert, so dass die bebaute Fläche inzwischen auf ca. 30.000 m2 gewachsen ist. Auch diese Gebäude mussten natürlich in die neue Infrastruktur eingebunden werden. Nach Abschluss der Planungsphase wurden die Arbeiten an die Waning Anlagenbau GmbH & Co. KG aus Vreden vergeben. In direkter Nachbarschaft zum Dula-Werk gelegen, ist dieses auf Industriebau, Logistik, Krankenhaustechnik und die Kühlung von Rechenzentren spezialisierte Unternehmen für die gesamte Umsetzung inklusive Inbetriebnahme und Abnahme der Baumaßnahme verantwortlich. Zur Unterstützung auf der regelungstechnischen Seite wurde die Energie-Team-Megunorm GmbH & Co. KG (ETM) aus Ibbenbüren hinzugezogen. Diese Experten im Bereich der klassischen Mess-, Steuer- und Regeltechnik haben für die neue Heizungsanlage besondere Regelstrategien und -konzepte entwickelt, mit denen die gesteckten Energieziele erreicht werden können.
Wissen wohin die Energie fließt
Abgesehen von der klassischen witterungsgeführten Vorlauftemperatur-Regelung der Heizungsanlage war es das Ziel, die Heizzentrale sowohl auf der Energieerzeugerseite als auch auf der Energieverteilerseite transparent zu gestalten. „Die Frage war, wohin fließt welche Wassermenge und letztendlich, wohin fließt die Energie“, erläutert Thomas Sickmann von ETM. Durch den Altbestand an Rohrleitungen im Verteilungsnetz kann niemand genau sagen, was dort vor sich geht. Daher wurde in der Heizzentrale eine Einheit geschaffen, die es neben der klassischen Regelung ermöglicht zu erkennen, wohin die Energie fließt und wie man das aktiv beeinflussen bzw. begrenzen kann. Außerdem sollte ein elektronischer Hydraulischer-Anlagen-Abgleich möglich sein. Das alles ist notwendig, um die Anlage zu optimieren, die Energieeffizienz zu verbessern und letztendlich Energie zu sparen. „Dula hat sehr große Gebäudeflächen, sehr große und viele Rohrleitungen und es muss vermieden werden, dass Wasser unnötig transportiert wird“, so Thomas Sickmann. „Das kostet nur Pumpenenergie, die nicht notwendig ist.“
Druckunabhängiger Regelkugelhahn EPIV
In klassischen Verteilern wird die Wärmemenge durch den Einbau von Wärmemengenzählern im Vor- und Rücklauf erfasst. Der hydraulische Abgleich erfolgt z. B. über „Tacosetter“. Damit kann man über die Wärmemenge erkennen, welche Wärmemenge bzw. welche Wassermenge fließt. Allerdings gibt es in dieser Anordnung keine Möglichkeit, diese Menge elektronisch zu regeln bzw. zu begrenzen. Das System kann nur manuell geregelt werden, was aufgrund der vielen möglichen Stellglieder nur unzureichende Ergebnisse liefert. „Mit den neu eingebauten druckunabhängigen Regelkugelhähnen ,EPIV‘ von Belimo wird das jetzt viel einfacher“, erklärt Thomas Sickmann und ergänzt: „Hier kann ich über eine Messblende den Volumenstrom und damit die Wärmemenge erfassen und so eine Wärmemengenberechnung durchführen. Damit liegt die Wassermenge fest, die durch den jeweiligen Strang fließen darf. Diese wird über die übergeordnete Regeltechnik vorgegeben.“
Das Belimo-„EPIV“ regelt dabei die Wassermenge automatisch und druckunabhängig entsprechend dieser Vorgaben. Weitere Regelalgorithmen geben z. B. Regelstrategien für einzelne Verbraucher vor. Im Betrieb kann die Anlage durch die vorhandene Transparenz auf der Energieerzeuger- und der Energieverteilerseite optimiert werden. Man kann beispielsweise erkennen, ob zu viel Wasser durch die Anlage fließt, ob die Rücklauftemperaturen zu hoch sind, wo Leckagen auftreten oder wo hydraulische Kurzschlüsse vorliegen. Hauptziel ist dabei, die Energieerzeugerseite so zu optimieren, dass nur so viel Energie geliefert wird, wie auch tatsächlich benötigt.
Ein weiteres Plus der Belimo-Ventile ist, dass sie luftblasendicht schließen. Das bedeutet, es strömt tatsächlich nur Wasser durch das Ventil, wenn es strömen soll. Das ist wichtig, wenn aus Energiespar- und Kostengründen z. B. ein Heizkreis über das Wochenende abgedreht wird, da der entsprechende Gebäudeteil auskühlen kann.
Elektronischer hydraulischer Abgleich
Wichtig ist auch die Möglichkeit des automatischen, permanenten hydraulischen Abgleichs, der mit den Belimo-„EPIV“-Regelkugelhähnen möglich ist. Beim hydraulischen Abgleich wird durch den Öffnungsgrad einzelner Ventile festgelegt, welche Wassermenge in welchen Gebäudebereich fließt. In den meisten Fällen wird das heute noch mechanisch mit mehreren Personen gemacht. Pro Strang sind diese Mitarbeiter dann gut 30 min beschäftigt. Dabei muss man wissen, dass Veränderungen in einem Heizkreis Einfluss auf das gesamte System haben. Wird z. B. eine neue Klimaanlage in einem Gebäudebereich eingebaut oder ein Erweiterungsbau an den Heizkreislauf angeschlossen, wirkt sich das erheblich auf das Gesamtsystem aus. Auch wenn im System nur ein Aggregat verändert wird, wirkt sich das aus und es muss wieder ein hydraulischer Abgleich durchgeführt werden. „Das wird entweder durch Unkenntnis oder wegen des hohen Aufwands oft vernachlässigt“, erläutert Hendrik Waning, Geschäftsführer der Waning Anlagenbau GmbH & Co. KG. „Und das hat zur Folge, dass das Gesamtsystem hydraulisch nicht optimal ausgelegt ist und die Energie nicht immer da ankommt, wo man sie braucht. Mit dem ‚EPIV‘ gehört ein solches Szenario der Vergangenheit an.“
Die Ventile werden elektronisch angesteuert und entsprechend eingestellt. Hierfür ist nur eine Person notwendig und der Abgleich ist mit weniger als 15 s pro Strang erheblich schneller durchzuführen. Durch den automatischen, permanenten hydraulischen Abgleich wird also auch viel Zeit eingespart.
Installation und Anbindung an die Leittechnik
Die Installation der „EPIV“-Kugelhähne ist unkompliziert. Wichtig ist die Einhaltung der durch einen Pfeil am Gehäuse vorgegebenen Durchflussrichtung, da sonst der Durchfluss falsch gemessen wird. „Um die spezifizierte Messgenauigkeit zu erreichen, muss bei der Verrohrung eine Beruhigungsstrecke bzw. Einlaufstrecke von 5 x DN in Flussrichtung vor dem Messrohrflansch eingehalten werden“, erklärt Hendrik Waning. „So wird sichergestellt, dass an der Messstelle keine Verwirbelungen im Wasser auftreten, die die Messung beeinflussen.“ Durch die Beruhigungsstrecken wird der Verteileraufbau etwas höher als bei einem Standardverteiler.
Die Ventile können konventionell über die Vierleitertechnik oder über den Belimo-MP-Bus an die übergeordnete Leittechnik angeschlossen werden. Dula hat die klassische Vierleitertechnik gewählt, um die Ventile an die vorhandene GLT anzubinden. Über die vorhandene Schnittstelle zum EIB-System ist so ein umfassendes Energiemanagement möglich.
Reduzierung des Energieverbrauchs
Die erste Heizsaison wird zeigen, ob die gesetzten Ziele bezüglich der gewünschten Energieeffizienz erreicht werden können. Sicher müssen noch verschiedene Regelstrategien im Betrieb verändert und optimiert werden, was aber gemäß DIN 18380 durchaus im Rahmen des Üblichen liegt. Da bei Dula gleichzeitig mit der neuen Heizzentrale neue Gebäude hinzukommen und ein Bürogebäude erweitert wird, ist ein 1 : 1-Vorher-Nachher-Vergleich nicht ganz einfach, doch über eine Umlegung des Energieverbrauchs pro Quadratmeter möglich. „Wir rechnen mit einer Ersparnis von 20 bis 30 %“, zeigt sich Betriebsleiter Frank Kottbus zuversichtlich, „das wurde auch vom Fachplaner so im Vorfeld ermittelt.“
Jetzt Artikel freischalten:
tab DIGITAL
14 Tage kostenlos testen
2,49 € / Woche*
Fachwissen jederzeit und überall.
Greifen Sie auf exklusive PLUS-Artikel und das komplette Online-Archiv zu und lesen Sie tab bequem im E-Paper-Format. Das digitale Abo für alle, die flexibel bleiben möchten.
Ihre Vorteile:
- Exklusive tab-PLUS-Artikel
- 6 E-Paper für mobiles Lesen
- Online-Archivzugang
*129,48 € bei jährlicher Abrechnung inkl. MwSt.
tab KOMBI
4,99 € / Woche*
Das komplette tab-Erlebnis – digital & gedruckt.
Für alle, die Fachinformationen auf allen Kanälen nutzen möchten: Kombinieren Sie Print und Digital, profitieren Sie von unseren Fachforen und präsentieren Sie Ihr eigenes Projekt.
Ihre Vorteile:
- Exklusive tab-PLUS-Artikel
- 6 Print-Ausgaben pro Jahr
- E-Paper für mobiles lesen
- Teilnahme an einem Fachforum
- Online-Archivzugang
- Veröffentlichen eines Projekts
*259,48 € bei jährlicher Zahlung inkl. MwSt. & Versand
