Logistikzentrum in Hückelhoven
Regenwasserbehandlung in großen LiegenschaftenEinzelne Logistikzentren haben heutzutage schon mehr als 100.000 m² Dachfläche. Dazu kommt zu ebener Erde noch die Fahr- und Stellfläche für Lkw. Die Regenentwässerung zu planen, mit den Behörden abzustimmen und auszuführen, erfordert Planer mit speziellen Kenntnissen sowie Produkte mit hoher Leistungsfähigkeit und dauerhaft zuverlässiger Betriebsweise.
Hückelhoven (Kreis Heinsberg) liegt in Nordrhein-Westfalen, unweit der niederländischen Grenze. Fünf Gewerbegebiete mit zusammen 160 ha sind belegt. In Rurtal, dem sechsten Areal, standen Ende 2016 noch 13 von 53 ha zur Verfügung. Eigentlich Platz für weitere zehn mittelgroße Betriebe. Doch in der Dimension des fertiggestellten Logistikzentrums reicht es nur noch knapp für einen.
Dimensionen von morgen
Wer braucht derart große Hallen? Jürgen Wilscher, verantwortlicher Projektmanager bei Panattoni Germany Properties GmbH, nennt das Bauwerk in Hückelhoven die größte zusammenhängende Immobilie...
Hückelhoven (Kreis Heinsberg) liegt in Nordrhein-Westfalen, unweit der niederländischen Grenze. Fünf Gewerbegebiete mit zusammen 160 ha sind belegt. In Rurtal, dem sechsten Areal, standen Ende 2016 noch 13 von 53 ha zur Verfügung. Eigentlich Platz für weitere zehn mittelgroße Betriebe. Doch in der Dimension des fertiggestellten Logistikzentrums reicht es nur noch knapp für einen.
Dimensionen von morgen
Wer braucht derart große Hallen? Jürgen Wilscher, verantwortlicher Projektmanager bei Panattoni Germany Properties GmbH, nennt das Bauwerk in Hückelhoven die größte zusammenhängende Immobilie seiner Firma. Die Panattoni GmbH tritt als Bauherrenvertreter im Auftrag international tätiger Investoren auf und hat einen „hohen zweistelligen Millionenbetrag“ investiert. Der erste Nutzer stand mit dem Online-Händler Jago schnell fest. In vier Bauabschnitten sollte das Gebäude mit 122.000 m² Dachfläche bis August 2017 bezogen werden. Fertigstellung war schon ein Jahr vorher, dazu sind Fahr- und Stellflächen mit weiteren 38.000 m² entstanden, zusammen ein versiegelter Bereich von 160.000 m². Nach der Insolvenz des Online-Händlers im Mai 2017 wurde mit Rhenus ein international agierendes Logistikunternehmen als neuer Nutzer gefunden, der inzwischen das komplette Gelände angemietet hat.
Die Regenwasserableitung war eine der großen Herausforderungen für Planer und Genehmigungsbehörden, denn die Halle ist 505 m lang und 240 m breit. Der vom Dach stammende Regen ist nicht so verschmutzt, dass er behandelt werden müsste. Anders der Oberflächenabfluss von 120 Stellflächen der LKW, die gleichzeitig am Gebäude zum Be- und Entladen andocken. Dazu kommen 400 Auto- und 100 LKW-Park- und Wendeflächen. Niederschlag hiervon wird in Sedimentationsanlagen gereinigt und zusammen mit dem Dachablauf verzögert abgeleitet.
Regenwasserbewirtschaftung heute
Eine Voraussetzung für Neubau- oder Umbaumaßnahmen (sofern Änderungen an der Entwässerung geplant sind) ist ein Entwässerungsgesuch. Die untere Wasserbehörde beurteilt dann u.a., ob die Regenwasserableitung den Vorschriften entspricht. War früher Niederschlag in die Kanalisation abzuleiten, so soll dies jetzt vermieden werden. Insbesondere Anschlüsse an den Mischkanal sind tabu laut Wasserhaushaltsgesetz (WHG 2009), gültig seit 1. März 2010. Die Landeswassergesetze der Bundesländer und die örtlichen Abwassersatzungen der Kommunen wurden entsprechend angepasst, in NRW z.B. durch den Runderlass Niederschlagswasserbeseitigung. [1]
Vor allem beim Bau großflächiger Liegenschaften, z.B. Industriebetriebe, Verkehrsflächen und öffentliche Gebäude, werden deshalb zunehmend dezentrale Anlagen zur Rückhaltung und Behandlung von Regenwasser eingesetzt. Dieses wird vor Ort verdunstet, alternativ gedrosselt und gereinigt in ein Oberflächengewässer eingeleitet oder in den Untergrund versickert – eine ökologische und zugleich ökonomische Alternative zum Ableiten in Mischkanälen und Mitbehandeln in kommunalen Kläranlagen. Verdunstung durch Dachbegrünung, Nutzung mithilfe von Zisternen, Versickerung sowie Einleitung in Oberflächengewässer ergänzen sich. Für jede Baumaßnahme haben die Bauherrschaft und deren Planer die Wahl zwischen verschiedenen Möglichkeiten, sofern örtliche Entwässerungssatzung, Baugenehmigung, Verordnungen und Gesetze nichts anderes fordern. Entscheidend ist, von welchen Flächen das Regenwasser stammt und wie es dem natürlichen Wasserkreislauf wieder „einverleibt“ werden soll.
Woher – Dach oder Verkehrsfläche?
Zunächst wird grob unterschieden in der Herkunft des Regen-wassers von:
Innerhalb dieser drei Gruppen kann weiter unterteilt werden, je nach Belastungspotential in Bezug auf das abfließende Regenwasser. Dabei spielt eine Rolle, ob Stoffe dabei sind, die den natürlichen Wasserhaushalt belasten, und wie groß der vom Grundstück abfließende Volumenstrom in Liter pro Sekunde ist.
Begrünte Dächer beispielsweise haben kaum Belastungspotential, unbeschichtete, metallgedeckte Dachflächen jedoch wegen des schnellen Wasserabflusses und des Abtrags von Schwermetallverbindungen deutlich mehr.
Wohin – Grundwasser oder Oberflächengewässer?
Ist das Grundwasser oder ein Oberflächengewässer Ziel der Ableitung, gilt zunächst WHG 2009. Darin bestimmt der Gesetzgeber seit 1. März 2010 laut § 57 (1): „Eine Erlaubnis für das Einleiten von Abwasser in Gewässer (Direkteinleitung) darf nur erteilt werden, wenn die Menge und Schädlichkeit des Abwassers so gering gehalten wird, wie dies bei Einhaltung der jeweils in Betracht kommenden Verfahren nach dem Stand der Technik möglich ist, …“. Im Sinne des Gesetzgebers ist auch das Grundwasser ein öffentliches Gewässer. Zum Stand der Technik laut WHG 2009 sind die Ausführungen der Abwasserverordnung, speziell Anhang Regenwasser, maßgeblich. Doch dieser Anhang fehlt bisher. Deshalb gelten für Regenabflüsse von Verkehrsflächen zur Einleitung in Oberflächengewässer noch örtlich spezifische Auflagen mit Verweis auf technische Regeln. In Nordrhein-Westfalen ist eine dieser Auflagen der sogenannte Trennerlass des Umweltministeriums [2].
Regenwasser wird im neuen Verteilzentrum in Hückelhoven seit Fertigstellung 2016 an drei Stellen gesammelt, im Süden, Südwesten und Norden der 38.000 m² großen Verkehrsfläche. Die Versickerung ist durch die Beschaffenheit des Untergrundes auf der ehemaligen Gelände-/Lagerfläche einer Steinkohlenzeche nicht möglich und nicht zulässig. Nach Auflage des zuständigen Wasserwirtschaftsamtes muss der Oberflächenabfluss vor Verlassen des Grundstücks gereinigt und verzögert mit begrenztem Volumenstrom in das nächstgelegene Fließgewässer eingeleitet werden.
Gesetzliche Grundlage hier war der Runderlass NRW mit seinen Anforderungen an die Niederschlagsentwässerung im Trennverfahren [2]. Dort heißt es u.a. im Abschnitt 1.1 „Grundsätze“: „… Die in Anlagen zur Niederschlagswasserbehandlung anfallenden Rückstände sind unter Beachtung der einschlägigen wasser- und abfallwirtschaftlichen Bestimmungen ordnungsgemäß zu entsorgen. Den nachfolgend unter Ziffer 3 aufgeführten technischen Möglichkeiten zur Niederschlagswasserbehandlung stehen Lösungen gleich, bei denen im Zulassungsverfahren nachgewiesen wird, dass hinsichtlich des Schadstoffrückhalts und des dauerhaften Betriebs eine Vergleichbarkeit vorliegt und die Alternativlösung die Anforderungen des die Einleitung zulassenden Bescheides erfüllt.“
IKT-Zulassung und Teilstrombehandlung in NRW
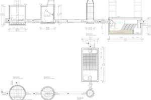
Die im Logistikzentrum in Hückelhoven eingesetzten Anlagen zur Behandlung des Oberflächenabflusses, aus Betonfertigteilen zusammengesetzt und unterirdisch eingebaut, wurden in Labor und Praxis geprüft. Dafür zuständig war das Institut für Unterirdische Infrastrukturen (IKT) im Auftrag des Landesamtes für Natur, Umwelt und Verbraucherschutz Nordrhein-Westfalen (LANUV). „Durch integrierte Lamellenpakete lassen sich in verhältnismäßig kleinen Bauwerken große angeschlossene Flächen behandeln, um die aktuellen Kriterien des Gewässerschutzes zu erfüllen“, sagt Stephan Klemens. Er ist Leiter der Entwicklung beim Hersteller Mall in Donaueschingen. Es ist ein physikalischer Effekt, der hier genutzt wird: Beim Durchströmen der Kunststofflamellen von unten nach schräg oben sedimentieren mitgeführte Partikel schneller als im freien Wasservolumen. Die wirksame Oberfläche des Beckens wird damit vervielfacht, die Absetzwirkung, insbesondere kleiner Partikel, verbessert.
Walter Kolditz vom Ingenieurbüro Redeker in Detmold hat die Niederschlagsableitung der gigantischen Immobilie geplant. „Laut Trennerlass des Landes Nordrhein-Westfalen dürfen wir für die zu behandelnden Abflüsse das Teilstromverfahren durchführen, d.h., dass mindestens 15 l/s x ha gereinigt werden müssen, Damit sind weit über 90 % der jährlichen Niederschlagsmenge abgedeckt, die in Deutschland eine durchschnittliche Intensität von ca. 5 l/s x ha hat. Die darüber hinausgehenden Mengen (bis ca. 90 % bei den seltenen Starkregenereignissen) sind erfahrungsgemäß relativ wenig verschmutzt.“ Der vor dem Lamellenklärer eingebaute Drosselschacht staut bei Starkregen in das Trennbauwerk zurück. Dort beginnt der Bypass an einer Überlaufschwelle.
Dem Konzept von Kolditz folgend, wurden an mehreren Seiten des Geländes gleichartige Behandlungsanlagen im Untergrund gebaut. Mit dieser parallelen Anordnung wird vermieden, dass durch das erforderliche Leitungsgefälle, hier 5 ‰, eine zu große Tiefe an der Grundstücksgrenze erreicht wird. Denn der Abfluss des gereinigten Wassers von 38.000 m² Fahr-, Rangier- und Fahrzeugabstellfläche soll schließlich im fast ebenen Gelände noch das nächstgelegene Fließgewässer erreichen. Zuvor wird es zusammen mit dem unbehandelten Niederschlag des 122.000 m² großen Daches, das mit einer PVC-Folie abgedichtet ist, in einem ca. 400 m langen, offenen Betonkanal gesammelt. Dieser verläuft parallel zum Gebäude entlang der Längsseite des Grundstücks und dient dazu, die bei Starkregen abfließenden Regenmengen zurückzuhalten, bevor sie mit maximalem Volumenstrom von 100 l/s in das nächstgelegene Fließgewässer „Vorfluter 14“ abgeleitet werden. Wegen drohender „Bergschäden“ und der fehlenden Flächenverfügbarkeit auf dem ehemaligen Zechengelände konnte die übliche Bauweise eines Regenrückhalte-Erdbeckens nicht realisiert werden.
Behandlungsbedarf, Stand der Technik
Wie bei allen Abwässern fordert das WHG konsequent auch bei der Einleitung von Niederschlagswasser den Stand der Technik. Dabei hängen die Verfahren nicht allein von der Art der Verschmutzung, sondern insbesondere auch von der Leistungsfähigkeit der betreffenden Gewässer ab. So gestaltet sich die Formulierung von Grenzbedingungen schwieriger als dies bei klassischem Abwasser der Fall ist. Bisher fehlen Vorgaben zur Einhaltung physikalischer Parameter bei der Einleitung in Oberflächengewässer. Jedoch kristallisieren sich die feinen Abfiltrierbaren Stoffe (AFSFein) als Leitparameter für die Grenzbedingungen heraus.
In den meisten Fällen wird der Behandlungsbedarf mithilfe von Merkblatt DWA-M 153 aus dem Quotient der ermittelten Punkte von Gewässerart und Belastung des Zulaufs festgestellt. Das heißt, Niederschlagswassereinleitungen durften nur erfolgen in Abhängigkeit von einerseits zumutbarer Verkehrsbelastung/Exposition der Flächen und andererseits ausreichender Selbstreinigungskapazität des Gewässers, in das eingeleitet wird. Der Durchgangswert der jeweiligen Behandlungsanlage gibt den Frachtanteil, der im Jahresmittel nicht zurückgehalten wird, an. Dabei gilt die Reinigungsleistung als ausreichend, wenn der Durchgangswert D ≤ G/B (B = Belastungspunkte, G = Gewässerpunkte). Die beim Logistikzentrum in Hückelhoven eingesetzten Lamellenklärer erreichen bei einer Oberflächenbeschickung qA 9 m/h und der Kritischen Regenspende rkrit den Durchgangswert 0,2 [3].
Neue Regeln für Regenwetterabflüsse in Siedlungsgebieten
In Zukunft gilt für Einleiten in Oberflächengewässer als Regelwerk DWA-A 102 (im September 2016 als Entwurf erschienen) bzw. BWK-A 3. Das neue Arbeitsblatt wird inhaltsgleich in beiden Verbänden DWA und BWK erscheinen und trägt den Titel „Grundsätze zur Bewirtschaftung und Behandlung von Regenwetterabflüssen zur Einleitung in Oberflächengewässer“.
Es gliedert sich in den Teil A „Emissionsbezogene Bewertungen und Regelungen für Regenwetterabflüsse in Siedlungen“ (Bearbeitung durch DWA) und den Teil B „Immissionsbezogene Bewertungen und Regelungen für Regenwetterabflüsse in Oberflächengewässer“ (Bearbeitung durch BWK). Dabei wird beim Einleiten von Niederschlagswasser noch spezifischer als nach den bisherigen technischen Regeln die Belastbarkeit eines Gewässers berücksichtigt.
Grundlage ist die Wasserhaushaltsgleichung, nach der die Anteile von Verdunstung, Versickerung und Abfluss am jeweiligen Ort den Werten entsprechen sollen, die vor der Bebauung im natürlichen Zustand gegeben waren.
„Ein wichtiges Ziel unserer technischen Regeln muss sein, die Veränderungen des lokalen Wasserhaushalts durch (zukünftige) Siedlungsaktivitäten in mengenmäßiger und stofflicher Hinsicht so gering zu halten, wie es technisch, ökologisch und wirtschaftlich vertretbar ist“, meint Prof. Dr.-Ing. Theo G. Schmitt von der Technischen Universität Kaiserslautern [4]. Er ist Sprecher der für das Arbeitsblatt A 102 zuständigen DWA-Arbeitsgruppe ES-2.1 und stellvertretender Vorsitzender des DWA-Hauptausschusses „Entwässerungssysteme“.
Zusammenfassung
Für besonders große Immobilien, wie das Logistikzentrum in Hückelhoven, ist die Bewirtschaftung und Behandlung von Regenwetterabflüssen zur Einleitung in ein kleines Oberflächengewässer eine Herausforderung. Nordrhein-Westfalen nennt die technischen und ökologischen Erfordernisse im Trennerlass und in der zugehörigen Produktliste des IKT.
Aufgrund der neuen technischen Regeln DWA-A 102/BWK-A 3 sind auch bundesweit künftig ökologisch schützenswerte Fließgewässer besonders berücksichtigt. Mit einem Lamellenklärer, der dem Stand der Technik entspricht, lassen sich in verhältnismäßig kleinen unterirdischen Schachtbauwerken Abflüsse von sehr großen angeschlossen Flächen reinigen. Durch die Teilstrombehandlung wird der Aufwand wirtschaftlich vertretbar, ohne die Effektivität der Behandlung nennenswert zu verringern.
Quellen
Jetzt Artikel freischalten:
tab DIGITAL
14 Tage kostenlos testen
2,49 € / Woche*
Fachwissen jederzeit und überall.
Greifen Sie auf exklusive PLUS-Artikel und das komplette Online-Archiv zu und lesen Sie tab bequem im E-Paper-Format. Das digitale Abo für alle, die flexibel bleiben möchten.
Ihre Vorteile:
- Exklusive tab-PLUS-Artikel
- 6 E-Paper für mobiles Lesen
- Online-Archivzugang
*129,48 € bei jährlicher Abrechnung inkl. MwSt.
tab KOMBI
4,99 € / Woche*
Das komplette tab-Erlebnis – digital & gedruckt.
Für alle, die Fachinformationen auf allen Kanälen nutzen möchten: Kombinieren Sie Print und Digital, profitieren Sie von unseren Fachforen und präsentieren Sie Ihr eigenes Projekt.
Ihre Vorteile:
- Exklusive tab-PLUS-Artikel
- 6 Print-Ausgaben pro Jahr
- E-Paper für mobiles lesen
- Teilnahme an einem Fachforum
- Online-Archivzugang
- Veröffentlichen eines Projekts
*259,48 € bei jährlicher Zahlung inkl. MwSt. & Versand
