PVT-Hybridsystem mit Wärmepumpe
Energetische Sanierung von MehrfamilienhäusernIn diesem Beitrag wird ein insbesondere für Mehrfamilienhäuser geeignetes Sanierungskonzept vorgestellt, bei dem die beiden Sanierungsmaßnahmen zeitlich entkoppelt sind. Das Heizsystem basiert auf einem Hybridsystem mit PVT-betriebener Wärmepumpe.
Hintergrund und Motivation
Gemäß Pariser Klimaabkommen ist für Deutschland Klimaneutralität bis 2035 erforderlich [1]. In Deutschland entfallen rund 35 % des Energieverbrauchs auf Gebäude und Quartiere, davon wiederum über 90 % für das Bereitstellen von Wärme [2]. Um in diesem Bereich das Klimaziel zu erreichen, ist v. a. eine deutlich größere und konsequentere Sanierungsrate erforderlich.
Auch die Europäische Kommission hat am 14. Oktober 2020 ihre Renovierungswellenstrategie zur Verbesserung der Energieeffizienz von Gebäuden veröffentlicht [3]. Demnach können grundlegende Renovierungen die...
Hintergrund und Motivation
Gemäß Pariser Klimaabkommen ist für Deutschland Klimaneutralität bis 2035 erforderlich [1]. In Deutschland entfallen rund 35 % des Energieverbrauchs auf Gebäude und Quartiere, davon wiederum über 90 % für das Bereitstellen von Wärme [2]. Um in diesem Bereich das Klimaziel zu erreichen, ist v. a. eine deutlich größere und konsequentere Sanierungsrate erforderlich.
Auch die Europäische Kommission hat am 14. Oktober 2020 ihre Renovierungswellenstrategie zur Verbesserung der Energieeffizienz von Gebäuden veröffentlicht [3]. Demnach können grundlegende Renovierungen die Effizienz um 60 % verbessern. Dabei geht es zum einen um das Ersetzen fossil betriebener Wärmeerzeuger, zum anderen um die Dämmung der Gebäudehülle. Oftmals scheitert der Umstieg auf ein effizientes Niedertemperatur-Heizsystem mit hohem Anteil an erneuerbaren Energien aber daran, dass hierzu erst das Gebäude saniert werden müsste, um den Wärmebedarf und das Temperaturniveau des Heizkreises zu reduzieren.
Hybridsystem „Solink“-Wärmepumpe mit Spitzenlast-Gaskessel
Neben der Problematik fehlender Niedertemperatur-Heizungen scheitert der Einsatz von Wärmepumpen v. a. im dicht bebauten Stadtgebiet oft daran, dass Erdsonden oder Erdreich-Wärmetauscher nicht möglich oder gewünscht sind, während Luftwärmepumpen aufgrund der Geräuschemissionen und/oder des hohen Stromverbrauchs nicht zielführend sind.
„Solink“-PVT-Wärmepumpenkollektoren [4] können aufgrund ihres hohen Wärmeübertragungsvermögens zur Umgebungsluft als alleinige, effiziente und lautlose Wärmequelle für Wärmepumpen eingesetzt werden. Gleichzeitig produzieren sie elektrischen Strom – durch die Kühlung auf der Rückseite mit höherem Ertrag als reine PV-Module.
Das Sanierungskonzept besteht darin, im ersten Schritt einen vorhandenen Gaskessel zu ergänzen durch eine Wärmepumpe mit „Solink“-Kollektoren. Falls nötig, kann auch der Gaskessel mit geringem Investitionsvolumen ersetzt werden. Bei einer typischen Dimensionierung liegt die Wärmepumpenleistung bei 50 % der max. Heizleistung, liefert aber – teilweise im Parallelbetrieb – über das Jahr ca. 80 % der Heizenergie. Wird im zweiten Schritt die Gebäudehülle saniert, kann der Anteil des Gaskessels bis auf null reduziert werden.
Eine solche stufenweise Sanierung innerhalb von max. 15 Jahren wird besonders unterstützt: Bei Umsetzung einer Sanierungsmaßnahme als Teil eines geförderten individuellen Sanierungsfahrplans (iSFP) erhöht sich der Fördersatz zusätzlich um 5 Prozentpunkte, seit dem 28.7.22 allerdings nicht in Bezug auf die Heizung.
„Solink“-Wärmepumpen stellen eine dritte, mittlerweile in über 800 Anlagen erprobte Klasse von Wärmepumpensystemen neben Erdreich-/Grundwasser-gekoppelten Wärmepumpen und Luftwärmepumpen dar. „Solink“-Systeme sorgen dafür, dass bei der Dekarbonisierung der Heiztechnik gleichzeitig der dafür notwendige Zubau an regenerativer Stromproduktion sichergestellt ist.
Im Rahmen des von der DBU geförderten „Solink“-Projekts [5] wurde gezeigt, dass mit „Solink“-Wärmepumpen in Ein- und Mehrfamilienhäusern eine vergleichbare, teilweise bessere Wirtschaftlichkeit wie mit Luft- oder Erdsonden-Wärmepumpen kombiniert mit einer PV-Anlage erreicht wird [6]. Die PVT-Kollektoren produzieren bei typischer Dimensionierung im Jahr die elektrische Energie, die das System verbraucht. Zwar wird der Strom zum größeren Teil dann produziert, wenn kein Heiz- aber Warmwasserbedarf besteht, bei entsprechendem Lastmanagement mit Wärme- und Batteriespeicher kann der Strombedarf dennoch zu 50 % und mehr direkt gedeckt werden [7]. In den bisherigen und auch im folgenden dargestellten Untersuchungen wurde bei Mehrfamilienhäusern die Nutzung des Eigenstroms auch für Haushalte/Mieter jedoch noch nicht berücksichtigt, da die aktuellen bürokratischen Voraussetzungen dafür für viele Vermieter abschreckend sind. Die Wirtschaftlichkeit kann bei Nutzung des Eigenstroms auch für Haushalte/Mieter somit noch weiter verbessert werden.
Simulation einer stufenweisen Sanierung
In einer Simulationsstudie wurde ein typischer Sanierungsablauf eines Mehrfamilienhauses in zwei Schritten abgebildet. Tabelle 1 zeigt die zugrunde gelegten Randbedingungen.
In der vollsanierten Stufe 3 wird von einer Reduktion des Heizwärmebedarfs um 45 % ausgegangen. Die vorhandene Heizfläche muss dann nur noch deutlich weniger Leistung übertragen, so dass die Vorlauf- und Rücklauftemperaturen ebenfalls reduziert werden können.
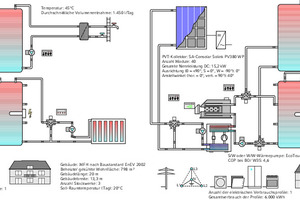
Die Simulationen wurde mit Polysun durchgeführt. Die Bilder 2 und 3 zeigen die jeweils modellierten Hydrauliken.
In allen drei Fällen ist jeweils ein 1.000 l Pufferspeicher für den Heizkreis und ein weiterer für die Warmwasserbereitung vorgesehen.
Mit Jahressimulationen wurden die Reduktionen der Verbrauchskosten und der durch das Heizsystem verursachten CO2-Emissionen berechnet. Dabei wurden folgende Annahmen angesetzt:
Bei der Berechnung der Kosten wurde die Einspeisevergütung von den Verbrauchskosten abgezogen. Bei den CO2-Emissionen wurde dagegen die CO2-Gutschrift durch PV-Einspeisung nicht berücksichtigt.
Bild 4 zeigt die jährlichen CO2-Emissionen und Betriebskosten der drei Stufen. Durch die erste Sanierungsstufe werden die CO2-Emissionen um 37 % reduziert, durch die zweite um 65 % gegenüber der Ausgangsbasis. Dabei nicht berücksichtigt ist die CO2-Vermeidung durch Einspeisung von PV-Strom in das Netz. Die Kosteneinsparung – hier unter Berücksichtigung der Einspeisevergütung – ist ähnlich: 39 % in der ersten Stufe, 67 % in der zweiten Stufe. Dies entspricht CO2-Emissionen von 11,2 kg CO2/m2 Wohnfläche und erreicht damit den Zielwert von ≤ 12 kg CO2/m2 für Wohngebäude im Bestand der mit dem Ziel der maximalen Erderwärmung von 1,5 °C korrespondiert [8].
In der ersten Sanierungsstufe liefert der Gaskessel nur noch 22 % des Jahreswärmebedarfs, 78 % kommen von der „Solink“-Wärmepumpe. Die Ursache, dass die Kosten und Emissionen in der vollsanierten Stufe gegenüber der ersten Stufe nicht weiter sinken liegt darin, dass der Gesamtwärmebedarf nicht halbiert wird, sondern immer noch 65 % des Verbrauchs der ersten Sanierungsstufe ausmacht. Der Heizwärmeverbrauch sinkt zwar auf 55 %, aber der Warmwasserverbrauch bleibt gleich. Auch führt die bessere Wärmedämmung dazu, dass der Heizbetrieb in der Übergangszeit reduziert wird – also die Zeiten, die auch sehr effizient mit Wärmepumpe und PVT versorgt werden könnten.
Bild 5 zeigt die Energiebezüge der drei Varianten im Detail sowie wichtige Kennzahlen. Der Eigenverbrauchsanteil von Stufe 2 und 3 liegt jeweils bei etwa 40 %, d. h. die von den „Solink“-Kollektoren produzierte elektrische Energie wird fast zur Hälfte direkt für das Heizsystem oder für den Allgemeinstrom genutzt. Bei direkter Nutzung des PV-Ertrags auch für die Haushalte könnte dieser Anteil und damit auch die Wirtschaftlichkeit noch weiter gesteigert werden. Voraussetzung, dass dies auch in der Praxis umgesetzt wird, ist dass die Bundesregierung ihrer Pflicht nachkommt, bis Ende Juni 2021 das EEG diesbezüglich konform zum Europarecht anzupassen, so dass in einem Gebäude produzierter Strom ohne bürokratische Hürden und Abgaben direkt genutzt werden kann.
Das Ergebnis von bivalenten Systemen, hier der teilsanierten Variante „Solink-Hybrid“, hängt in Bezug auf Kosten- und CO2-Einsparung stark vom Regelkonzept ab. Hier wurde ein von der Außentemperatur abhängiger Bivalenzpunkt mit Parallelbetrieb angesetzt: der Kessel wird nur unter 0 °C Umgebungstemperatur zusätzlich zur Wärmepumpe freigegeben. Weiterhin ist ein einfaches, nicht prädiktives Energiemanagement implementiert: Übersteigt die PV-Netzeinspeisung einen Schwellwert, so wird die Soll-Temperatur der Wärmepumpe, mit der sie den Pufferspeicher beheizt, angehoben.
Reale Anwendung
Die Wärmeversorgung eines Mehrfamilienhauses der Volkswohnung Karlsruhe, das 1963 errichtet und in den 1980er und 1990er-Jahren saniert wurde, wurde in 2020 mit einer „Solink“-Wärmepumpe sowie einem Spitzenlast-Gaskessel saniert. Die Sole-Wärmepumpe hat eine Leistung von 43 kWth (B0/W35), der Spitzenlastgaskessel eine Leistung von 60 kWth, das „Solink“-Kollektorfeld hat eine Fläche von 200 m2.
Die Inbetriebnahme ist Ende Juli 2021 erfolgt. Das System wird vom Fraunhofer ISE im Rahmen des Projekts Smartes Quartier Karlsruhe-Durlach (SQ-Durlach) messtechnisch betreut.
Zusammenfassung und Fazit
„Solink“-PVT-Wärmepumpensysteme ermöglichen auch im dicht bebauten Stadtgebiet den Einsatz von effizienten Wärmepumpen. Entscheidende Vorteile gegenüber einer Luft-Wasser-Wärmepumpe mit PV-Anlage sind die höhere Systemeffizienz und die nicht vorhandene Lärmbelastung. Gegenüber Erdreich-Wärmepumpen entfallen Einschränkungen durch Platzbedarf bzw. geologische Voraussetzungen für Bohrungen. In Verbindung mit einer zeitlich entkoppelten Sanierung von Heiztechnik und Gebäudehülle eröffnen sie neue Möglichkeiten der energetischen Sanierung des Gebäudebestands.
