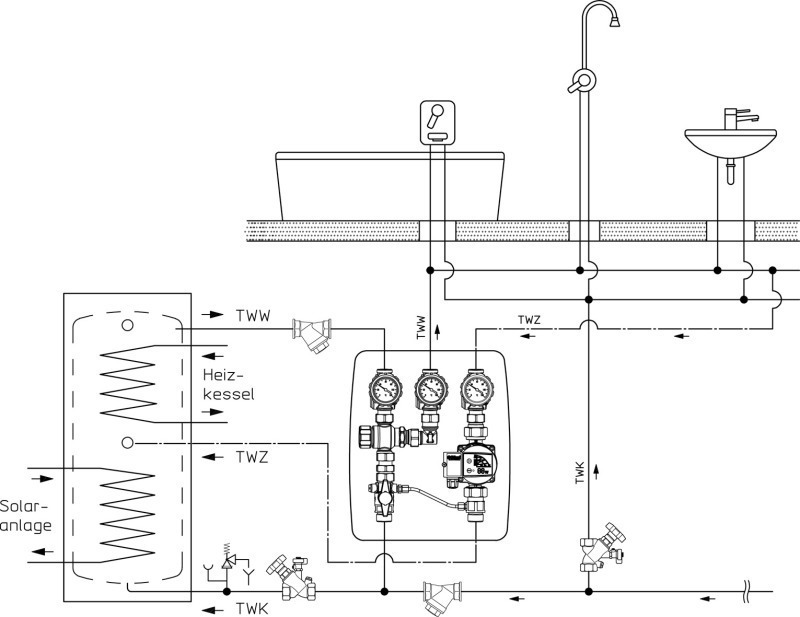
Zirkulationsstation
Für Trinkwasser-Zirkulationsanlagen, z. B. in Ein-/Zweifamilienhäusern, bietet Oventrop die kompakte Station „Regucirc M“ an. Die wärmegedämmte Pumpenbaugruppe besteht aus einem thermostatischen Brauchwasser-Mischventil (35 bis 65 °C) mit Verbrühschutz, Rückflussverhinderern und Absperrkugelhähnen mit integrierten Thermometern zur Kontrolle der Trinkwassertemperaturen sowie einer energiesparenden Hocheffizienzpumpe (entsprechend der Energieeffizienzklasse A bei Heizungs-Umwälzpumpen).
Die Station wird zwischen dem Trinkwarmwasserspeicher und der Zirkulationsanlage eingebaut. Sie regelt die...
Jetzt Artikel freischalten:
tab DIGITAL
14 Tage kostenlos testen
2,49 € / Woche*
Fachwissen jederzeit und überall.
Greifen Sie auf exklusive PLUS-Artikel und das komplette Online-Archiv zu und lesen Sie tab bequem im E-Paper-Format. Das digitale Abo für alle, die flexibel bleiben möchten.
Ihre Vorteile:
- Exklusive tab-PLUS-Artikel
- 6 E-Paper für mobiles Lesen
- Online-Archivzugang
*129,48 € bei jährlicher Abrechnung inkl. MwSt.
tab KOMBI
4,99 € / Woche*
Das komplette tab-Erlebnis – digital & gedruckt.
Für alle, die Fachinformationen auf allen Kanälen nutzen möchten: Kombinieren Sie Print und Digital, profitieren Sie von unseren Fachforen und präsentieren Sie Ihr eigenes Projekt.
Ihre Vorteile:
- Exklusive tab-PLUS-Artikel
- 6 Print-Ausgaben pro Jahr
- E-Paper für mobiles lesen
- Teilnahme an einem Fachforum
- Online-Archivzugang
- Veröffentlichen eines Projekts
*259,48 € bei jährlicher Zahlung inkl. MwSt. & Versand
